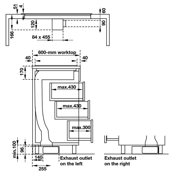
Lắp đặt & vận chuyển
Điều khiển chạm trực tiếp thông thường sẽ bất tiên trong trường hợp bạn cần thay đổi đột ngột mức gia nhiệt. Với cảm ứng trượt mức thay đổi công suất thật dễ dàng và tiện lợi
Bếp điện từ kết hợp hút mùi Hafele HC-IHH80A 539.66.698 sử dụng mặt kính gốm thủy tính vát cạnh – made in Germany, chịu nhiệt độ cao

Tính năng gia nhiệt nhanh trên bếp điện từ kết hợp hút mùi Hafele HC-IHH80A 539.66.698 giúp bạn nấu năng nhanh hơn. Với tính năng này bếp sẽ tập trung công suất vào vùng Booster, bạn có thể đun sôi nước trong dưới 3 phút
Nếu bạn không an tâm về chất lượng nồi. Bạn chỉ cần đặt nồi nên trên bếp từ kết hợp hút mùi Hafele HC-IHH77A 539.66.822 và để bếp kiểm tra và nhận diện chất lượng nồi
Bếp từ thông minh Hafele tự nhân diện vùng nấu theo kích thước đáy nồi. Đặt nồi trên bếp rồi bếp sẽ chọn vùng nấu phù hợp với kích thước của đáy nồi giúp tiết kiệm năng lượng.
Bạn không cần quan tâm bếp điện từ kết hợp hút mùi Hafele HC-IHH80A 539.66.698 chạy bao lâu. Chỉ cần hết thời gian hẹn giờ, bếp tự tắt và âm báo cảnh báo cho người sử dụng.
Với bếp điện từ kết hợp hút mùi Hafele HC-IHH80A 539.66.698 thì bạn không lo lắng về kích cỡ và hình dạng của nồi. Trái với các bếp khác, cuộn cảm của bếp HC-IHH80A có chữ nhật cho phép bạn sủ dụng toàn bộ điện tích của bếp.

Với tính năng kết nối hai vùng nấu nhỏ thành một vùng nấu lớn hơn bạn có thể nấu những món có kích thước lớn đăc biệt.
Bạn rất dễ chạm nhầm bảng điều khiển bếp khi đang lau dọn bếp hoặc trẻ em đùa nghịch với bếp. Để hạn chế rủi do tính tăng khóa trẻ em sẽ khóa toàn bộ phần cảm ứng điều khiển của bếp, giúp bạn thao tác dễ dàng.
Tính năng này cảnh báo nhiệt dư trên mặt bếp khi đã tắt bếp. “H” là cảnh báo khi nhiệt độ trên 60ºC và “h” khi nhiệt độ từ 45-60ºC. Rất an toàn cho người sử dụng
Cảm biến sẽ hoạt động và tắt bếp ngay lập tức khi phát hiện nước sôi tràn ra mặt điều khiển, qua đó bảo vệ được bảng mạch điều khiển bếp.


| Mã sản phẩm | 539.66.698 |
| Hãng sản xuất | Hafele |
| Xuất xứ | Châu Âu – Tây Ban Nha |
| Tổng công suất | 6.1kW |
| Số bếp nấu | 1 vùng nấu từ 19 x 21cm – 1.6, Booster 1.85 kW
1 vùng nấu từ 19x21cm – 2.1 Booster 3.0 kW 1 vùng nấu điện 21/14 cm, 2.2 kW |
| Mặt kính | Mặt gốm thủy tinh Schott Ceran, vát 4 cạnh |
| Máy hút mùi | Máy hút mùi kết hợp có thể hoạt động hút xả hoặc tuần hoàn |
| Bảng điều khiển | Bảng điều khiển cảm ứng, 9 mức gia nhiệt Điều khiển cảm ứng hoạt động của máy hút mùi |
| Chức năng khác | Tự nhận diện xoong nồi
Chức năng gia nhiệt nhanh Chức năng ghi nhớ và tạm dừng Chức năng ghép hai vùng nấu và giữ ấm Chức năng tự động tắt theo thời gian cài đặt Hiển thị nhiệt độ dư (báo hiệu bề mặt nóng) |
| Chức năng hẹn giờ | 99 phút |
| Chất liệu/ màu sắc | Kính đen |
| Chương trình độc lập chức năng từng bếp | Có |
| Đèn báo hiển thị nhiệt độ dư | Có |
| Nguồn điện | 220V |
Kích thước của sản phẩm:
| Kích thước bề mặt | 800R x 520S x 170C mm |
| Kích thước khoét đá | 750R x 500S mm |
✧ Dịch vụ vận chuyển của chúng tôi hoặc do chúng tôi chỉ định sẽ chịu trách nhiệm với hàng hóa và các rủi ro như mất mát hoặc hư hại của hàng hóa trong suốt quá trình vận chuyển hàng từ chúng tôi đến khách hàng.
Sản phẩm sẽ được bảo hành nếu thoả mãn các điều kiện sau:
✧ Sản phẩm còn trong hạn bảo hành
Với những sản phẩm không áp dụng phiếu sẽ căn cứ vào ngày sản xuất trên thân sản phẩm hoặc thời gian kích hoạt bảo hành điện tử
✧ Hư hỏng do chất lượng linh kiện hay lỗi quy trình sản xuất
✧ Sản phẩm không nằm trong trường hợp bị từ chối bảo hành
( Tìm đọc thêm chi tiết những quy định phần chính sách công ty cuối trang Website Huyền Anh)
© Bản quyền thuộc về CÔNG TY TNHH XÂY DỰNG VÀ ĐẦU TƯ THƯƠNG MẠI HUYỀN ANH | Cung cấp bởi Sapo